103 m² Prefabrik Ofis
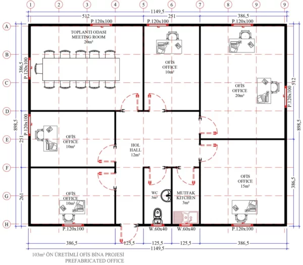
103 m² prefabrik ofis, bir önceki başlıktaki 102 m² prefabrik ofisten farklı olarak biraz daha geniş bir alan sunar. Bu, biraz daha büyük bir işletmenin ihtiyaçlarını karşılamak için ideal bir seçenektir. Bu ofisler genellikle 3-4 odalı ve bir toplantı odası ile donatılmıştır. Ayrıca, bir mutfak, tuvalet ve duş da içermektedir. Prefabrik ofislerin birçok avantajı vardır. İlk olarak, inşaat süresi kısa olduğu için işletmelerin faaliyetlerini hızlı bir şekilde başlatmalarına olanak tanır. Ayrıca, prefabrik ofisler, geleneksel ofislere göre daha uygun fiyatlıdır ve uzun ömürlüdür. Bu ofislerin kurulumu, geleneksel inşaat yöntemlerine göre daha az çevresel etkiye sahiptir ve enerji verimliliği açısından daha iyidir.






