2019
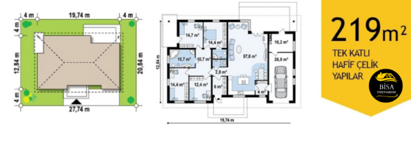
Tek katlı hafif çelik yapılar günümüzde popülerlik kazanmıştır. Yapı sektöründe son yıllarda gereksinimleri karşılamak ve yeni trendlere ayak uydurmak adına hafif çelik yapılar tercih edilmektedir. Bu yapılar, hafif, dayanıklı, çevre dostu ve ekonomik olmaları nedeniyle, birçok avantaj sunmaktadır. Hafif çelik yapılar, çelik profillerin çatı kirişleri, duvar çerçeveleri, kolonlar ve zemin çerçeveleri gibi farklı yapı elemanları kullanılarak inşa edilir. Bu yapılar, betonarme ya da ahşap yapılarla karşılaştırıldığında daha hızlı bir şekilde inşa edilirler. Ayrıca, hafif çelik yapılar, daha az işçilik gerektirirler, bu nedenle de daha ekonomiktirler.Hafif çelik yapılar, aynı zamanda çevre dostudur. Çünkü, çelik üretimi sırasında sera gazı emisyonu daha azdır. Ayrıca, bu yapılar geri dönüştürülebilir malzemelerden yapılmıştır, bu da atık üretimini azaltır ve çevreye daha az zarar verir. Tek katlı hafif çelik yapılar, farklı amaçlar için kullanılabilirler. Örneğin, depo, garaj, ofis, mağaza, atölye, spor salonu veya yaşam alanı olarak kullanılabilirler. Bu yapılar, kullanım amacına göre özelleştirilebilir ve farklı tasarımlarla inşa edilebilirler.Hafif çelik yapılar, aynı zamanda dayanıklıdırlar. Çelik, yüksek mukavemetli bir malzemedir ve bu nedenle de hafif çelik yapılar, deprem, yangın, sel ve diğer doğal afetlere karşı daha dayanıklıdırlar. Ayrıca, bu yapılar, çelik kaplama sayesinde paslanmaya karşı da dirençlidirler. Sonuç olarak, tek katlı hafif çelik yapılar, günümüzde popüler bir yapı türüdür. Bu yapılar, hafif, dayanıklı, çevre dostu ve ekonomik olmaları nedeniyle, birçok avantaj sunmaktadır. Bu yapılar, farklı amaçlar için kullanılabilirler ve özelleştirilebilirler. Hafif çelik yapılar, gelecekte de yapı sektöründe önemli bir rol oynamaya devam edecektir.





